Nohejlová Anna
Komunitní centrum Barrow "Qargi"
Navrhované komunitní centrum je koncipováno jako multifunkční veřejná budova, která propojuje sportovní,
společenské a každodenní provozy do jednoho přehledného celku. Cílem návrhu je vytvořit celoročně využitelné
zázemí pro obyvatele města, které bude podporovat komunitní život a nabídne prostor pro setkávání, pohyb,
vzdělávání i neformální aktivity.
Hmotové řešení objektu vychází z potřeby přizpůsobení se náročným klimatickým a geotechnickým podmínkám. Stavba je navržena jako nízký, dvoupodlažní objekt s horizontálním výrazem, který
respektuje měřítko okolní zástavby. Objekt je vyvýšen nad terénem na pilotové konstrukci, což umožňuje ochranu permafrostového podloží a omezuje tvorbu bahna a stojaté vody v letním období.
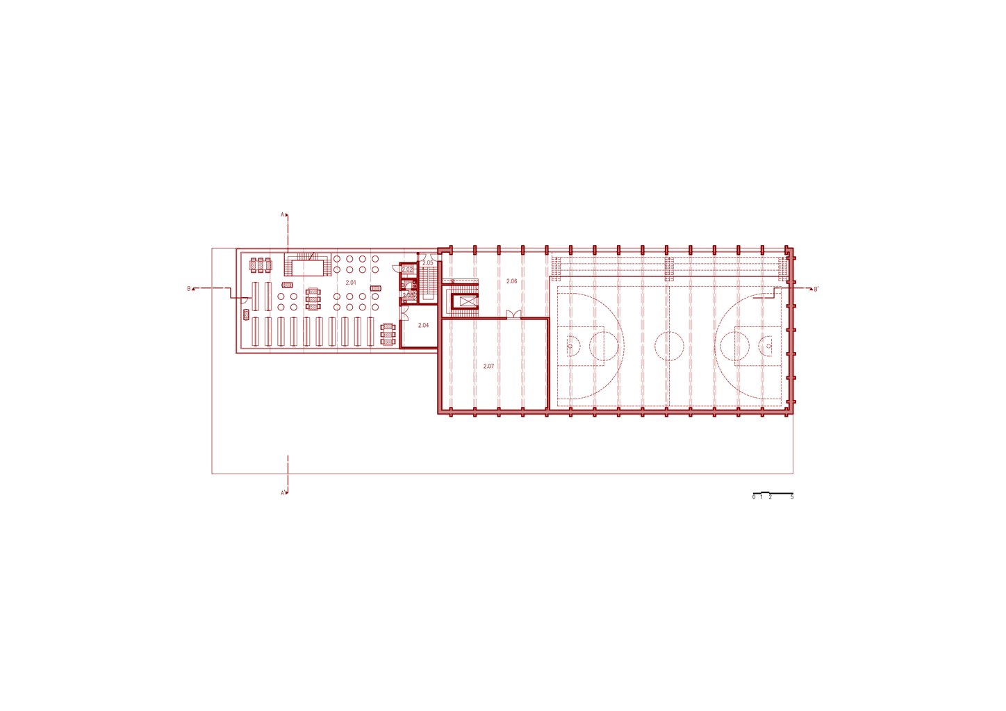
Dispozičně je stavba rozdělena do čtyř hlavních provozů - jižní část objektu zaujímá bistro, na něj navazuje
centrálně umístěný malý lokální obchod a severní část objektu je vyhrazena multifunkčnímu komunitnímu
a sportovnímu sálu, určenému pro sportovní aktivity, kulturní akce, vzdělávání a komunitní setkávání.
Čtvrtým provozem je hydroponický skleník umístěný ve vyšším podlaží, který reaguje na omezenou dostupnost
čerstvých potravin a je propojen především s bistrem.
Konstrukčně je objekt řešen jako dřevostavba z CLT panelů. Volba materiálu vychází z jeho dobrých
tepelněizolačních vlastností, rychlosti výstavby a vhodnosti pro stavění v odlehlých oblastech.
Hydroponický skleník je navržen jako konstrukce v konstrukci, doplněna o lomené střechy. Navrhované komunitní centrum doplňuje okolní zástavbu a vytváří aktivní veřejný prostor, který rozšiřuje možnosti společenského života ve městě Barrow.
ročník 1. Ing. Arch.
KAR
archiv
ateliéry
EA Zerozero Balda/Žid Buček/Hamerlová Kolařík plus Novák/Seibert Saffarian/Sviták Šépka/Bárta
harmonogram research about news kontakt
cz / en